Widok 1 Widok 2 Widok 3 Widok 4

ul. Raginisa 10, Wysokie Mazowieckie 18-200

Ilość lokali2
Powierzchnia110 m²
OdbiórII kw. 2027

Opis inwestycji

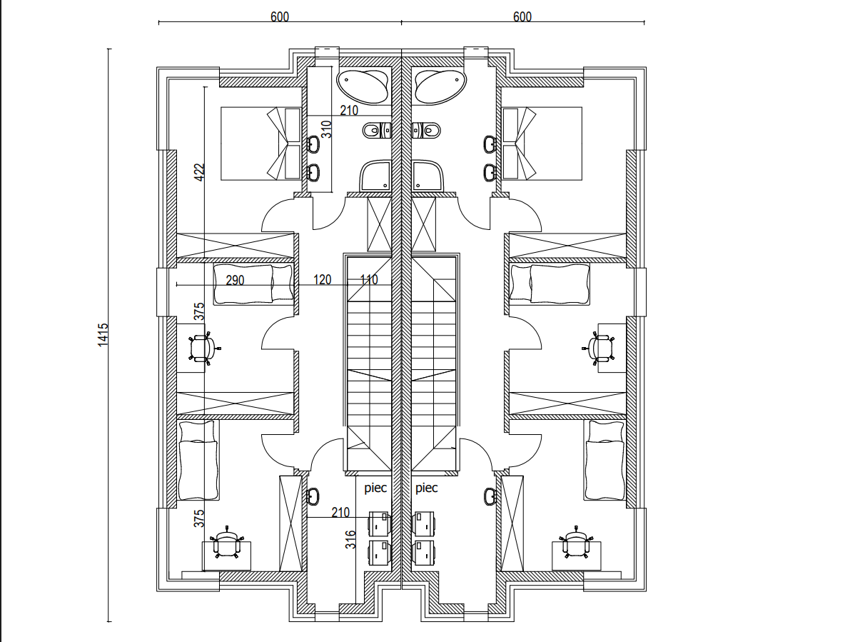
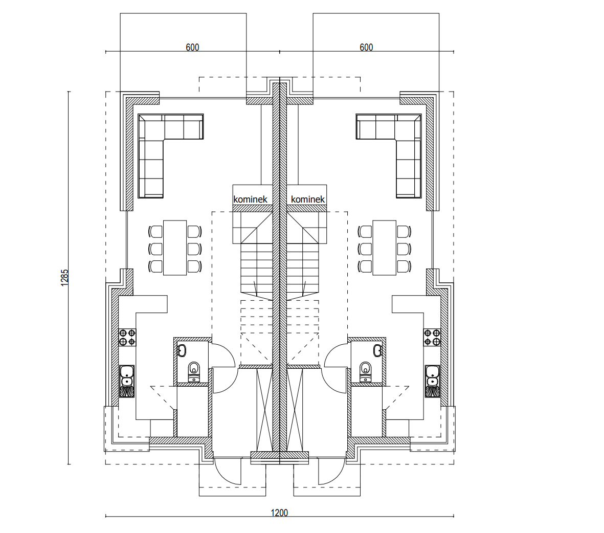
Przy ul. Raginisa realizowany jest budynek mieszkalny 2-lokalowy. Każdy lokal ma około 110 m² powierzchni użytkowej i został zaprojektowany jako układ 3 pokoje + aneks, z nastawieniem na wygodne, rodzinne użytkowanie.

Wysokie Mazowieckie to miasto powiatowe z pełną infrastrukturą codzienną: szkołami, przedszkolami, placówkami handlowymi, usługami i opieką zdrowotną. Lokalizacja zapewnia sprawny dojazd do większych ośrodków regionu, w tym Białegostoku i Warszawy.

W rejonie osiedla południowego (w tym ul. Raginisa) miasto realizowało modernizacje układu drogowego i chodników, co podnosi komfort komunikacji lokalnej. Planowany termin oddania lokali do użytkowania: II kwartał 2027 r.

Widok inwestycji
Raginisa - dodatkowy widok inwestycji
110 m² powierzchnia użytkowa lokalu

Funkcjonalność i komfort

Układ lokali został przygotowany pod potrzeby rodziny: 3 pokoje + aneks oraz strefy dzienne i prywatne rozdzielone dla wygodnego użytkowania.

Układ dzienny Salon z aneksem kuchennym
Strefa prywatna 3 pokoje + łazienka
Komfort Przemyślany rozkład pomieszczeń
Lokalizacja Sprawny dojazd i infrastruktura miejska

"Budujemy funkcjonalną przestrzeń codzienną.
Twój nowy lokal przy ul. Raginisa."

— AMW Development

Lokale w sprzedaży

Lokal Pow. użytkowa Pokoje Cena Cena za m² Status Karta lokalu
10A 110,00 m² 3 + aneks 850 000 zł 7 727,27 zł/m² W przygotowaniu Zobacz
10B 110,00 m² 3 + aneks 850 000 zł 7 727,27 zł/m² W przygotowaniu Zobacz
LOKALIZACJA

Położenie inwestycji

DOKUMENTACJA

Materiały informacyjne

Pobierz kluczowe dokumenty dla inwestycji. PZT jest dostępny, a prospekt informacyjny jest w trakcie przygotowywania.

Plan zagospodarowania przestrzennego

Szczegółowy plan rozwoju obszaru i warunków zabudowy dla inwestycji.

Prospekt informacyjny

Dokument zawierający kluczowe informacje o inwestycji i warunkach nabycia lokalu.

Prospekt informacyjny

Prospekt informacyjny jest obecnie w trakcie przygotowywania.

Dokument będzie wkrótce dostępny. Zachęcamy do kontaktu z Biurem Sprzedaży w celu uzyskania aktualnych informacji.

Karty lokali

Karty lokali są obecnie w trakcie przygotowywania.

Pliki będą wkrótce dostępne. Zachęcamy do kontaktu z Biurem Sprzedaży po aktualny harmonogram udostępnienia dokumentów.

← Wróć do oferty